Menu
  • SOLIDWORKS Blog
  • Education Blog
  • Tech Blog
  • International Blogs
    • SOLIDWORKS Brazil
    • SOLIDWORKS France
    • SOLIDWORKS France Education
    • SOLIDWORKS Germany
    • SOLIDWORKS Italy
    • SOLIDWORKS Japan
    • SOLIDWORKS LATAM y España
  • Podcast
  • DELMIAWorks Blog
The SOLIDWORKS Blog

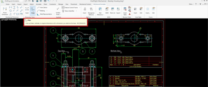
Representation Panel for Power Dimensioning

What’s New in DraftSight R2026x FD01

By Diego Perez March 2, 2026
Share this...
Share on facebook
Facebook
Share on pinterest
Pinterest
Share on twitter
Twitter
Share on linkedin
Linkedin
What’s New in DraftSight R2026x FD01

This update includes more seamless data transitions when saving your data to the cloud, in addition to several new dimensioning tool updates.

... Continued
What’s New in SOLIDWORKS 2026

Search

Select Category

Recent Posts

  • What’s New in SOLIDWORKS Electrical Schematic Professional R2026x FD01
  • What’s New in DraftSight R2026x FD01
  • What’s New in SOLIDWORKS 2026x FD01 – Collaboration and Data Management
  • Behind the Design: Meet the Lead Designer Behind the Smith Blade – Ben McDonnell
  • What’s New in SOLIDWORKS 2026x FD01 – Design and Modeling

Archives