Can you believe SOLIDWORKS is 30? It was launched in 1995 and has been an industry favorite ever since!
I’ve been working with the CAD solution for 20+ years, and all the small enhancements have really added up to make a big impact over the years. One thing that hasn’t changed is that you all still rely on SOLIDWORKS to get the job done. To help you get your job done faster, we continue to deliver enhancements throughout the year with each new update, which means you don’t have to wait for an annual release to get your hands on the latest features.
The latest update, R2025x FD02, is here, and I want to tell you about the design and modeling enhancements for 3DEXPERIENCE SOLIDWORKS and SOLIDWORKS with Cloud Services. This update enables you to start a design session in Offline Mode without an internet connection, add your own keywords to the Command Search and much more!
Unplanned Offline Mode – stay productive even when not connected.
Lose your internet connection, no problem, as you can launch Offline Mode and continue to work offline. If you lose your internet connection while connected to the platform, you’ll receive an error message asking if you’d like to work in Offline Mode. Just save your work locally, click on Offline Mode, and the system will restart so you can continue working on your model offline. Previously, you could only enable Offline Mode when you were online and knew you would be offline, like on an airplane or out in the field. Now you can carry on with your design wherever you are, whenever, even if you don’t have an internet connection.

Enhanced Command Search – Customize keywords to find commands quickly.
Increase command searchability by adding customized search terms to existing commands in the Command Search menu. For example, for the command “Make Drawing from Assembly,” you might add search terms such as DWG, blueprint, plan, etc. Then, when a user searches for DWG in the Command Search, the “Make Drawing from Assembly” command will come up and show the relevant keyboard shortcut.
This is particularly helpful for users new to CAD, those coming from different CAD systems, or even existing users who draw a blank occasionally. Hey, after decades of commands, it could happen!

Multi-Language Design Table Support – communicate design intent more clearly.
Multi-language design table support gives you the ability to translate headers that are in a different language to your language, improving global collaboration.
Simply click on the table in the feature tree, go to Edit Table, and choose the translate option.

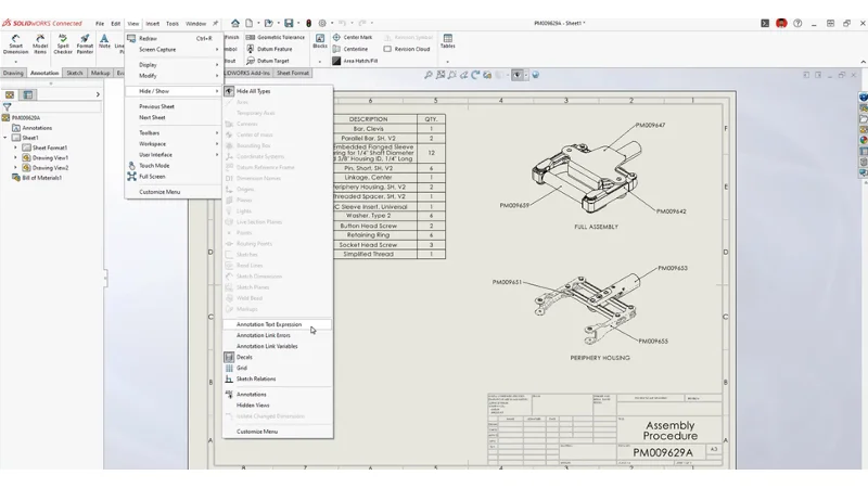
Ability to Hide/Show Text Expression of Properties – search drawings faster.
Quickly toggle the visibility of text expressions for all properties on a drawing sheet, making it easier to identify property links. This eliminates the need to hover over annotations, providing a faster way to review and manage property expressions in drawings.

Lock First Row Visibility for Revision Tables – ensure the first revision creation date is accessible.
It’s common to want to review your first revision, and now you can easily do this by having the system show the first revision in your row of revisions, regardless of the revision number or visible row count.
You can enable this under System Options, Document Properties where you usually choose your row count.

Apply Document Units to Cutlist IDs – save time by eliminating manual unit conversions.
There’s a new Cutlist ID option that you can set so your values are displayed in the preferred units. This will improve consistency and usability for sheet metal and weldments.
Once you choose your preferred unit settings (such as inches, pounds and seconds) under Document Settings, go to Weldments and choose “Apply Document Units to Cutlist IDs.”

Disable Auto-Resolve for Lightweight Mode – view now, resolve later.
Improve performance and save time when working with large assemblies with the ability to shut off auto-resolve and then open an assembly in Lightweight mode.
Under System Options, just click FeatureManager, then shut off the auto-resolve option, go to Open, Lightweight, Open, and voilà.
So now, when you expand your assembly in the feature tree, you can view your components faster and resolve them later.

Add Pin to Fillet/Chamfer Feature Command – save time and clicks when applying Fillets and Chamfers.
You can now pin the Fillet Property Manager so the Fillet/Chamfer command stays open. This allows multiple fillets to be applied without reopening the command, streamlining your workflow, saving time and reducing repetitive adjustments when applying fillets to multiple bodies.

Create Squares with the Rectangle Command – sketch a square faster.
Easily create squares using the Rectangle command by holding the shift key, automatically applying equal relations to the adjacent entities.

Support for Assembly Clips – improve design of tube, pipe, and electrical routes with more route mounting options.
You can now use assembly-based clips, mounts, and hangers, in addition to part-based design, to locate tube and electrical routes in SOLIDWORKS Routing. Snap virtual routes into and out of clips, mounts, and hangers to complete the virtual twin of the overall product design.

So, this is SOLIDWORKS today, and it has come a long way, thanks to you, our customers, who continue to shape the future of SOLIDWORKS.
Are you ready to take advantage of the latest enhancements? See the new features in action here on the What’s New Wiki page and then give them a go.
Learn more about other enhancements added this year by checking out my last blog here.
