The main goal of using SOLIDWORKS Inspection is to streamline and automate the creation of ballooned drawings and inspection reports (AS9102, PPAP, etc.). Most of our customers experience a productivity gain of between 70-90 percent, whichoften translates to the ability for their company to take on more business. However, we realized after talking to some of them that this number could drop when working will old drawings, scanned documents or simply PDF drawings created using an unusual font.
Surprisingly, the font used in the drawing can have a direct impact on how much time it will take to create your final inspection report. As opposed to SOLIDWORKS Drawings, when you work with PDF or TIFF drawing files, the Optical Character Recognition (OCR) engine compares the characteristics you capture with a “dictionary” to extract and interpret the information.

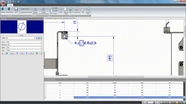
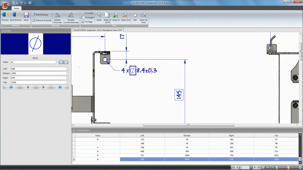
To help our users make the most out of the software, SOLIDWORKS Inspection 2016 introduces a new OCR Editor that allows you to create a custom dictionary for your organization.
With this new tool, users can easily open a PDF or TIFF document and manually select characters and specify the expected value. The user interface, similar to the SOLIDWORKS Inspection Standalone application, regroups familiar commands. Users can add or remove drawings, rotate, zoom in or out, to manually select and define each letter, digit or symbol of the new dictionary.

For best results, it’s recommended to capture between three and five iterations of the same character (digit, letter, etc.). In additionk to speed up the process, the Auto-Extract tool can also be used, saving a tremendous amount of time by automatically box selecting multiple characters and attempting to recognize them. Incorrect value can always be modified later on.


After proceeding the same way to define more characters or iterations, users can save their work as a new OCR dictionary (*.traineddata) and use it or share it with other members of their organization.

The OCR Editor enables users to achieve better results and ultimately save time when creating inspection reports and ballooned drawings from PDF and TIFF files for quality control purposes.

To know more about the other great enhancements introduced in SOLIDWORKS Inspection 2016, please take a look at the SOLIDWORKS launch website or contact your nearest reseller.


