SOLIDWORKS 2019 contains many exciting improvements and new capabilities that help you design, present, and communicate your ideas faster and easier. Here are some of the key improvements:
Create and work with large assemblies much faster. SOLIDWORKS 2019 is significantly faster when working with large assemblies. Whether you’re just viewing your design or adding new components and subassemblies, you’ll notice a significant difference in performance. And full support of the latest graphics cards results in a dramatic frame rate increase, meaning a better viewing experience.
Easier way to experience your designs in AR/VR. We’ve simplified the path from SOLIDWORKS to Augmented and Virtual Reality with a new option called Extended Reality (XR).
New design possibilities through the use of mesh modeling. Create incredibly detailed textures on your 3D models in seconds by automatically converting 2D textures into 3D geometry. And use automatic 2D curve generation to create parametric surfaces when smoothing out mesh geometry created from scan data and topology optimization studies.

Interact with SOLIDWORKS in new ways. Improvements to the Touch user interface include sketch recognition for splines and slots as well as gestures recognition for copy, select and drag, and 3D rotate lock. Support for the Microsoft Surface Dial is also included.
3D Markup makes collaboration faster, easier and more intuitive. Pen/Touch users can now draw directly on the 3D model to communicate ideas quickly; similar to what you would do with a screen shot image capture. These 3D markups stay with the model, makingit easier to communicate issues directly in the CAD model.
More powerful simulation capabilities. Topology Optimization provides Stress and Frequency constraints/goals when optimizing parts.

Powerful new tools for part modeling. Partial Fillet and Chamfer and interference detection for multi-body parts.
Configure and Render Products on-the-fly and on-line with SOLIDWORKS Sell. Click to add SOLIDWORKS designs to a SOLIDWORKS Sell cloud-based Configurator. Use on any device to share concepts and configurations of designs quickly and use Augmented Reality to show products in their actual environment.

Sheet metal improvements that speed design and manufacturing. Enhancements to the Tab and Slot tool include default through all cuts for slots, options to customize slot size and corner shapes during feature creation, the ability to select non-linear edges along which to create tabs versus merely linear edges, and the ability to group tab and slot features so that all the selected tab and slot features can be made uniform and modified as a group versus individually. In addition for sheet metal, when you assign a custom material to a sheet metal part, you can link sheet metal parameters, such as K factor and thickness, to the material. If you change the material, the sheet metal parameters also update automatically.
In addition to enhancements that improve design, many enhancements have been added to improve manufacturing including:
Smarter machining with SOLIDWORKS CAM/Machinist. Corner Slow Down and Arc. Feed-rate allows slowdown when approaching sharp corners and arcs. Create machine-specific machining strategies. Tooling improved with support for tapered shanks and more parameters.

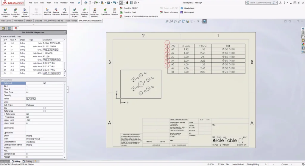
Increased productivity and flexibility with SOLIDWORKS Inspection. Improved Bill of Characteristics with new grid layout and group/ungroup. Additional extraction options to include hole tables for use on complex parts. Integration with SOLIDWORKS PDM to manage and organize inspection projects and deliverables.

Improved workflows for technical documentation with SOLIDWORKS Composer. SOLIDWORKS PDM integration enables access to PDM functionality directly from the ribbon within SOLIDWORKS Composer. Import PMI data directly from SOLIDWORKS models into SOLIDWORKS Composer. New icons, new commands and support for five new languages.

With SOLIDWORKS 2019 you get more power and speed to tackle the most complex problems, and the depth of functionality to finish critical detail work. Explore all of the new features and find a local launch event near you at here.

