SOLIDWORKS on every desktop

I first saw SOLIDWORKS 95 in late 1995 while I was working at another CAD software company. It was truly revolutionary at the time and frankly, frightening from a competitive standpoint. It wasn’t that parametric design was a new concept nor was it the fact that it ran on a Windows 95 PC. What made it remarkable was the combination of power, ease of use and cost of ownership. It literally had much of the power of the very complex, costly “high end” CAD software of the day, which only ran on complex and expensive UNIX Workstations, combined with Windows ease of use.
Simply put, SOLIDWORKS delivered the design power people needed and rapid parametric change management that everyone could learn and afford.
Fortunately for me, I saw this coming and joined SOLIDWORKS in 1999 and participated in SOLIDWORKS reaching over 3 million users today. What we learned during this rapid adoption was the true value of 3D and parametric design. The forward-thinking companies that used 3D already knew the value of the technology and wanted something better. The 2D users were less certain, and for some 3D users, it was a daunting proposition.
The dramatic speed difference with tools like SOLIDWORKS comes when it’s time to make changes, and when checking, electronically sharing and re-using the information. The vast improvement in value becomes clear, information is input just once in the 3D model and then changes are automatically and 100 percent correctly made everywhere without human intervention and the inevitable mistakes. This principal is now widely accepted as fact in the mechanical engineering community and thousands of companies have benefited by the increased productivity of SOLIDWORKS.
SOLIDWORKS automation comes to Electrical Design
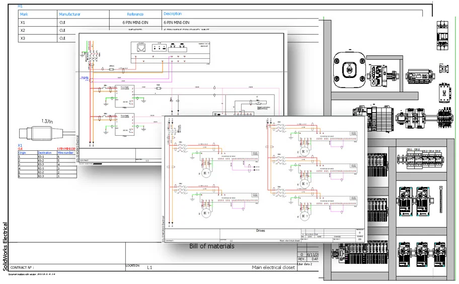
In serving our customers across many industries, we have been asked on many occasions to help bring the same level of performance, ease of use and value to electrical design. It was clear to us that the same challenges present in mechanical design were similar for electrical designers. It was obvious to us that we could simply apply the same parametric design methodology to electrical schematics. This time, we employed a relational database to be the intelligent foundation to a suite of highly intelligent drawing tools. Like SOLIDWORKS itself, SOLIDWORKS Electrical Schematics allows users to input information once from extensive smart libraries and use the information to automatically generate all needed reports and documentation.

Due to the built-in intelligence, design rule checks (DRCs) can rapidly identify and locate common design errors in seconds across multiple sheets. In the same way people who write documents would reply on spell and grammar checking, we believe DRCs are critical for electrical design work. A writer would never write a novel without spell checking, why would you design circuits without automatic error checking? I have never met an engineer who likes to tediously check their designs to make sure everything is connected right! Engineers like to design and innovate, not do administrative data entry and checking. In fact, customers who have adopted SOLIDWORKS Electrical have told us that they save one to two days a week on average doing mundane data entry, generating reports and checking since our software automates 100 percent of those tasks with inhuman accuracy.
What I normally see is professionals have CAD up in one screen and Excel on another going back and forth over and over again. The job is very tedious using traditional 2D CAD tools and changes are painful at best to track down every sheet, document or data field that has to be corrected across multiple sheets and reports. It is an incredible waste of time and talent to manually input bill of materials and type wire numbers manually. the complexity of electrical design and the significantly greater number of deliverables in an engineering data package means that intelligent software is even more critical than in the electrical world. The potential productivity rewards are greater as well by using modern automation and methods.
In summary, an intelligent parametric design system brings the same level of increased capabilities for electrical professionals as it does mechanical designers. Like before we are saving companies time and money. However, for the end user, what is even better is that people using SOLIDWORKS Schematics spend their day innovating and creating and not typing reports and living in spreadsheets. They get to spend their days being engineers and designers again. The software does the grunt work so they don’t have to. This is why lightning can indeed strike twice-pun intended.
