1. Increase your Productivity with the New Features in DraftSight 2022

2D CADOctober 20, 2021

Increase your Productivity with the New Features in DraftSight 2022

Lynn Allen shares her list of the best new enhancements and functionality…
AvatarLynn Allen
Share

Having worked for software companies nearly my entire professional life, I always found it exciting when a new release of my CAD product rolled out. DraftSight will soon launch its 2022 product version, and trust me, that excitement is still there!

The latest release has some fantastic new features that DraftSight users have been asking for (oh yes – they listen!) as well as some bonus features we didn’t even realize we needed!  You are going to love these new productivity enhancements – let’s take a look at what’s new in DraftSight 2022.

Custom Blocks

DraftSight added support for AutoCAD® Dynamic Blocks in the 2020 release, which was great, but now DraftSight 2022 has taken that support to a whole new level. You now have the ability to fully edit their functionality, plus you can even create your own!

To edit an imported Dynamic Block, you must first convert it into a DraftSight Custom Block. To do so, simply select the block, right-click, and select Convert to Custom Block from the pop-up menu. OK, that’s easy enough.

When you open your newly converted Custom Block in the Block Editor, you’ll see all the tools you’ll need to apply the advanced functionality you’ve come to expect, all within the newly expanded Edit Block contextual ribbon tab.

I was always a huge fan of Dynamic Blocks, after all, they can eliminate the need to have separate blocks for each variation, size, or orientation you might need. So, I was thrilled when DraftSight introduced their version, Custom Blocks, to the latest release.

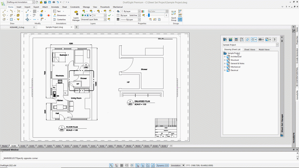
Sheet Set Manager Enhancements

The DraftSight Sheet Set Manager was introduced in DraftSight 2021 SP2 (Premium and Enterprise Plus), and DraftSight 2022 has additional enhancements to help you better organize your drawings into easily manageable subsets. Now you’ll have even more power to help you manage large drawing sets.

Pack and Go

Available through the Sheet Set Manager, or as a standalone routine, DraftSight 2022 now includes the powerful new Pack and Go feature, which does exactly what you would expect it to do! Pack and Go collects all of the files necessary for your DWG to appear and print correctly in an outside office or when sent to someone else.

Create a ZIP file, or a structured folder with Pack and Go, and let it do the job of collecting all the supporting files you need. You and your client or contractor will know that all the files required, such as XREFS, fonts, images, CTBs, plot configurations, etc., will be included in the transmittal.  No more frustrated clients when they open your drawing only to find a key file missing!

Named Sheet Selections

DraftSight 2022 now provides you the ability to create named Drawing Sheet Selections for easy access.  Simply select the sheets you want to include, access the creation tool from the convenient pulldown, and give it a name. Your set will appear in the list of named sets that you can access at any time.

Once your set is selected, you have access to all the tools available in the right-click menu. Open the files for editing, package them with the new Pack and Go tool, or choose any of the many Publish options.

Publish to DWF/DWFx

With DraftSight 2022, you can now publish to the popular DWF and DWFx file formats. If your workflow has you using electronic markup software for DWFs, you’ll be glad to know they are now supported in DraftSight.

Sheet List Tables

OK, this is one of the best new features in DraftSight 2022 – smart and associative Sheet List Tables!   Just right-click on either the top-level Sheet Set, a Subset, a Named Selection Set, or even individual files to insert a table with links to those sheets.

Once your table is inserted, you’ll find that DraftSight 2022 now hyperlinks the sheet number and title to the corresponding sheet. This allows you direct access to the sheet you need right from the table, without having to use another interface element.  Just one click and you are sent to the corresponding sheet!

Updating your table has been streamlined in DraftSight 2022 as well. When changes happen to your sheets, simply select the table, right-click and use the Update Drawing Sheet List Table tool.

Sheet sets are a powerful tool that many CAD gurus use to manage their project drawings.  These new features in DraftSight 2022 will really help us all be better organized!

Spline Improvements

All versions of DraftSight 2022 now include enhancements to help you better create and manipulate Splines.

You can still create your splines via the traditional Fit Points method. But in DraftSight 2022, you have the added ability to create them with the new Control Vertices method.

With the Fit method, the spline coincides with points that you define during its creation, as shown below.

With the new Control Vertices method (CV), the points that you select define a control frame for the spline. These CVs provide an efficient method to further refine your spline shape.

Editing your splines in DraftSight 2022 has also undergone significant improvements.

When a spline is selected, you’ll see a triangular grip near the start point. Simply click on it to display a popup menu that will allow you to toggle between either Fit or Control Vertices styles.

Hovering over one of the spline’s definition points will display a pop-up menu where you have the options to Stretch, Add, or Remove either Fit Points or a Control Vertex.

Finally, DraftSight 2022 has added a powerful new Spline Edit command. You can access it by selecting the spline you want to edit and right-clicking to display the contextual pop-up menu.

Once the command is started, right-click again to see the spline editing options.

This method will allow you to:

  • Close open Splines or open closed Splines
  • Join Splines with other 2D entities
  • Convert Splines to Polylines
  • Edit fit point data and control frame data
  • Edit properties and parameters of Splines

Suffice it to say – your Spline dreams have come true in DraftSight 2022!

Dark Mode Interface

Many of you are looking at your CAD screens for hours on end.  Now you can reduce your daily eye strain by switching DraftSight 2022 into a new, modern, clean Dark Mode.

To alleviate vision fatigue and exhaustion, all the DraftSight interface elements, such as menus, ribbons, and palettes, have been purposefully redesigned to fit the dark display without compromising the visuals, providing a peaceful, low-stress, and pleasant experience.

But don’t worry – if you prefer the light background – of course that is still an option!

Summary

Wow! What an incredible, power-packed release DraftSight 2022 is! If you’re one of the millions of existing DraftSight users, I think you’ll love the new upgrades found in this new release.

Subscribe

Register here to receive a monthly update on our newest content.

Get the latest articles in your inbox.

Receive updates on content you won’t want to miss!