Since its launch in 2022, Electrical Schematic Designer has received many improvements with enhancements delivered with each major release and each functional delivery (FD). FD updates are released throughout the year, and here is a list of my top 10 enhancements from this year, including product structure support, auto ballooning in 2D control panels, the ability to use cables or wires in terminal strips, and much more.
Here are my top 10:
Automatic Zoom to Fit
Save schematic editing time with a new Zoom-to-fit option in the Interface configuration menu: “Zoom-to-fit when opening a drawing. ” This option automatically zooms to fit any schematic drawing you open to the full-screen size.
When users finish their work on an electrical project, they usually save it wherever they are working in a schematic (typically zoomed into various details.) This new Zoom-to-Fit option is great, especially for people opening a previously updated electrical project so the new user can see the big picture. Opening in full screen reduces clicks and adjustment of schematic views, saving editing time. This is especially valuable when moving between electrical schematic sheets in large projects, as each schematic will open in zoom-to-fit mode.

Find Cables in Your Design
Accelerate electrical design changes with the ability to easily find a cable. Cable management has been improved with the ability to select a cable or cable core from the Design Tree and go directly to where it is used in your schematic drawings. This is a powerful way to find particular wires and cables, especially when you have hundreds of schematic sheets. You can easily jump to a particular page location using the “Go to drawing option,” available on the right mouse button.

Product Structure Support
Good news! You can now save both your electrical project and the product structure of your design to the 3DEXPERIENCE platform.
Even though this comes from the schematic (2D only), it can be combined with the product structure from the 3D mechanical design that includes mechanical parts such as pumps, tanks, etc., as part of the product structure – all on the 3DEXPERIENCE platform.
And because the schematic-based electrical product structure is combined with the mechanical product structure, design changes automatically update the overall product structure. This eliminates the need for error-prone, manual efforts to combine outputs from different electrical and mechanical design tools each time a design change is made.
Other design team members can then view your product’s overall product structure using other tools on the 3DEXPERIENCE platform, including the Product Structure Explorer app, Relations app and more.
Use the Product Release Engineer role to create a unified electrical and mechanical bill of materials (BOM) to get a full view of the content required to build your product. These tools then provide a gateway to additional capabilities on 3DEXPERIENCE, including process and manufacturing planning.

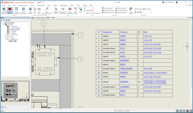
Auto Balloons in 2D Control Panels
Speed up the creation of great electrical documentation by inserting auto balloons into 2D cabinet layout drawings. Simply click Cabinet Layout > Auto Balloon, then select a drawing view in which to insert the balloons.
Further refine documentation by selecting the auto balloon leader style from a list of predefined choices and a balloon arrangement such as circular, square, or linear patterns for the balloons. If the document contains one, you can also insert a report table. The number of balloons associated with the parts in the report appears in a separate report template.

Shortening Links in Electrical Reports
Simplify and clarify electrical reports that contain ranges of component marks instead of listing all the marks. For example, you can control the value range as, “X1…X7” instead of listing all seven component marks, making reports shorter and easier to read.

Terminal Strips with Cables or Wires
Accelerate the documentation of electrical terminal strips by enabling connections now with wires or cables. There is more flexibility when it comes to electrical terminal strips as you can use wires or cables, or both when making your strip connections.

Drag and Drop from the Electronic Content Portal (ECP)
Create new electrical designs and libraries faster with the ability to drag and drop content into the Electrical Schematic Designer graphic area.

Expanded use of 6WTags in the Electrical Content Portal (ECP)
Find electrical content faster with the ability to search by date and class. The 6WTags search capability in the ECP now includes the option to search by classification, such as connectors, circuit breakers, etc. You can also search by date, including month and year.

Excel-based Content Import
Speed up importing new and existing electrical content with the option to import existing or new electrical content that includes full details using a Microsoft® Excel-based template, customizable for different electrical classification types. For example, you can import circuit and terminal information for parts, and cable core information for cables.
This enhanced template method provides a flexible way to import manufacturer’s part information into your library.

Add Distributed Terminal Functionality
Improve design accuracy with precise symbol-to-terminal mapping with the distribute terminal tool that lets you link symbols to specific circuits and pins, simplifying the depiction of complex terminal arrangements in electrical schematics. It offers an intuitive interface for dynamic circuit and pin selection, ensures precise symbol-to-terminal mapping, and improves design accuracy.
You can use this tool to change the association between a symbol connection point and a component circuit terminal. Note this tool is available only if the component is a terminal type.

As you can see, there is much new in Electrical Schematic Designer! To learn more, contact your Partner/Reseller for the latest update. This blog covers this year’s FD updates: R2024x FD01-FD04 and R2025x GA delivered in November.
See my last blog to learn about enhancements in the broad range of SOLIDWORKS 2025 ECAD solutions. Stay up to date by following the what’s new blogs here: https://SOLIDWORKS.com/xWhatsNew.
What will the New Year bring for Electrical Schematic Designer?
As a sneak peek, we will have more enhancements for connectors and other components in R2025x FD01 in February 2025 and a new 3DEXPERIENCE SOLIDWORKS Electrical 3D role targeted for early summer! I can’t wait to tell you more!
Happy holidays!
