1. Easily manage and edit your 2D data with Enterprise PDM and DraftSight

2D CADJanuary 31, 2013

Easily manage and edit your 2D data with Enterprise PDM and DraftSight

SolidWorks Enterprise PDM (EPDM) 2013 now has an add-in for DraftSight Premium…
AvatarKurt Lundstedt
Share

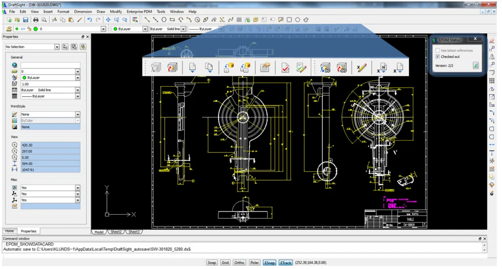
SolidWorks Enterprise PDM (EPDM) 2013 now has an add-in for DraftSight Premium that can be downloaded from the customer portal.  This add-in allows DraftSight Premium customers to work with vaulted 2D files directly from within the DraftSight environment.  DraftSight Premium offers additional benefits over the free version such as telephone and email support, network licensing, access to the DraftSight API (required for the EPDM add-in), and access to the Deployment Wizard.

The add-in enables the following functions from within the DraftSight environment:

  • Check out and check in files and Xrefs
  • Update title block properties
  • Access to the file data card and file property information
  • Get latest or previous versions of a file and Xrefs
  • Access to EPDM functions via a command line

Here’s a quick look at the available EPDM toolbars and status window from within DraftSight:

For more information regarding DraftSight the Premium Pack click here.

Subscribe

Register here to receive a monthly update on our newest content.

Get the latest articles in your inbox.

Receive updates on content you won’t want to miss!