The automotive, aerospace, defense, oil & gas, and medical device industries have strict safety regulations and requirements. Most companies working in these industries must provide industry-standard reports including inspection documents such as AS91002 or PPAP forms. Many SolidWorks users are creating First Article Inspections (FAI), Inspection Report, or Ballooned Drawings, but only a handful of you are already using software to do so.
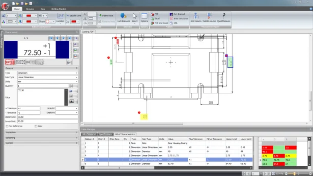
SolidWorks Inspection is a First Article Inspection (FAI) and in-process inspection software that greatly simplifies and automates the creation process of ballooned inspection drawings and inspection reports (AS9102, PPAP, etc…). SolidWorks Inspection consists of a stand-alone application and a SolidWorks add-in that enables users to leverage their legacy data regardless of whether they are SolidWorks files, PDFs or TIFFs. SolidWorks Inspection Professional extends SolidWorks Inspection capabilities by giving you multiple ways to enter measured values directly into an inspection project. Each characteristic’s value can be entered by manually typing them in, using a digital caliper or importing CMM results.

SolidWorks Inspection is a simple and intuitive application that reduces the time needed to create inspection documentation by up to 90%, and virtually eliminates errors inherent to any manual process, thus improving quality and reducing time to market. SolidWorks Inspection lets you
- Use the stand-alone application or the SolidWorks add-in to quickly balloon engineering drawings and create inspection reports.
- Work with SolidWorks drawing files, PDFs or TIFFs.
- Automatically balloon Inspection Dimensions specified by the designer or mechanical engineer.
- When working with PDF and TIFF files, capture inspection data using Optical Character Recognition (OCR).
- Compare drawing revision to quickly identify changes.
- Instantly export finished ballooned drawings as a PDF.
- Export inspection reports to Excel spreadsheets using standard templates such as AS9102 or PPAP forms.
- Customize Excel templates using the Template Editor to follow company or industry standards.
- Export inspection projects directly to quality systems such as Net-Inspect or CEBOS MQ1.
In addition to all the key features mentioned above, SolidWorks Inspection Professional allows users to manually or almost automatically enter measured inspection values.
- Enter measured values for each characteristic directly into the project either manually or by using a digital calliper.
- Import Coordinate-Measuring Machine (CMM) results.
- Highlight dimensions in green, red or yellow to instantly see which dimensions are In Tolerance, Out of Tolerance or Marginally within Tolerance – based on the values entered.
- Export color-coded ballooned drawings and inspection reports.
SolidWorks Inspection will be available from SolidWorks Value Added Resellers later this spring.



Want to see how SolidWorks can help you win new business and get to market faster? Request an in-person SolidWorks demo today.
